Search
24
  • 3
  • Bedrooms
  • 3
  • Bathrooms
  • 170 m²
  • Area Size
  • 400 m²
  • Land Area
  • TPLSV377
  • Property ID

Hua Hin Luxury Villas For Sale in Emerald Valley Soi 112 Close to Town

  • ฿ 5,590,000

Description

Discover luxury 3-bed villas in Emerald Valley Hua Hin Soi 112. Prime location near golf, town & beach. Contemporary Thai style homes.

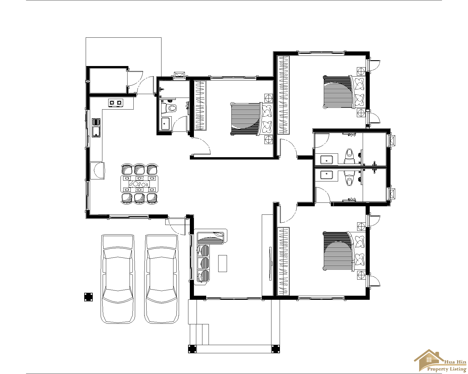
Following the success of four previous projects, the fifth Emerald Valley Hua Hin development presents luxury retirement villas in the prime location of Soi 112. This House Type B offers a spacious 3-bedroom, 3-bathroom layout designed in contemporary Thai style, perfect for private residence, retirement, or investment purposes.

Located in Soi Hua Hin 112, these new villas are surrounded by stunning mountain views and positioned conveniently close to the Best in Asia award-winning Banyan golf course. The development is just 10 minutes away from all the conveniences of Hua Hin town center and the beautiful beach, offering the perfect balance of tranquil living and urban accessibility.

These high-quality villas are being sold off-plan with an estimated build time of 7 months. The secure complex features excellent amenities including 24-hour security, a large communal pool, and a fitness room. Each villa includes a built-in European kitchen with granite countertops, hood, hob, sink, and cabinets, plus a comprehensive hot water system by Stiebel Eltron throughout the house.

The property comes complete with two covered carports, a washing area, storage room, and an underground water reserve tank of 1,600 liters with pump. Additional features include water and electricity meters with 15 Amp capacity and attractive outside grass paving. Please note that villas are sold unfurnished, and private swimming pools are available at additional cost.

Details

  • Property ID TPLSV377
  • Price ฿ 5,590,000
  • Property Size 170 m²
  • Land Area 400 m²
  • Bedrooms 3
  • Bathrooms 3

Schedule a Tour

Tour Type

Contact Information

View Listings
Thailand Real Estate Agency

Enquire About This Property

Similar Listings

Compare listings

Compare